Odesa Apartment 2
Leave your request
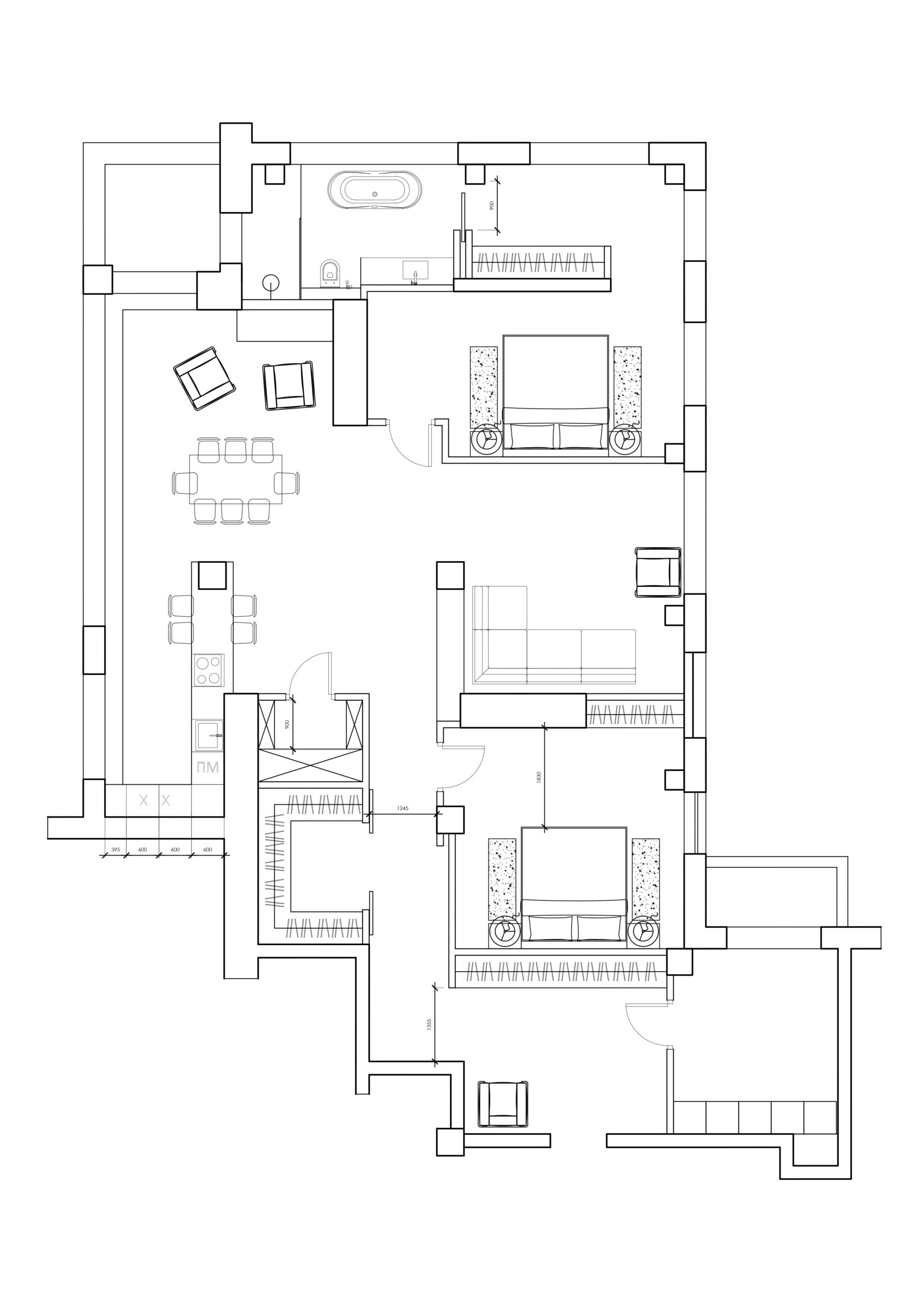
Location:
Odesa, Ukraine
Area:
1,322.0 sq. ft.m
2
Authors:
Leon Krukovskyi
Status:
In progress
3D:
K Design Group
RU
EN
UA
Our story
APARTAMENTS
Houses
Contacts
Menu
Our story
APARTAMENTS
Houses
Contacts
ORDER